Autor:

Rok návrhu:

Realizace:

Libor Kodl III.

2014

2015

Roubenka Kokořín W

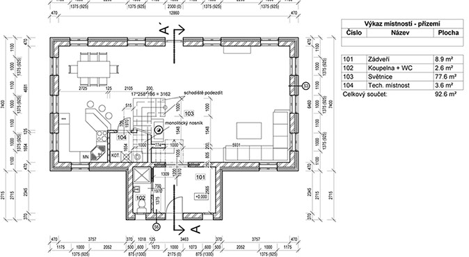
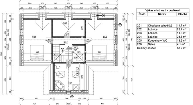
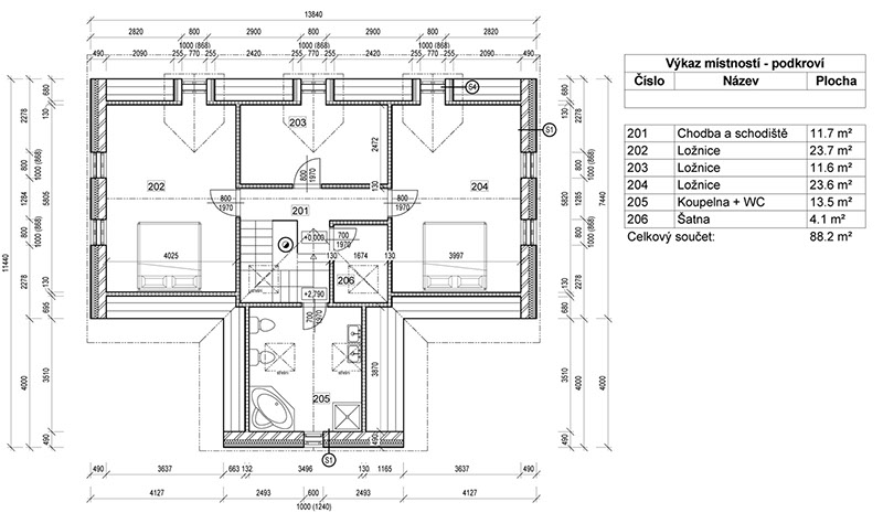
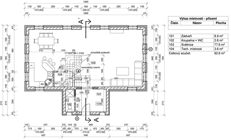
I druhá roubenka v CHKO Kokořínský důl svým vzhledem dokonale zapadá do krajiny. Zároveň splňuje všechny přísné regulativy pro výstavu na Kokořínsku. Aby bylo dosaženo i přísných tepelných norem pro RD, je narozdíl od sousedního domu požita technologie sendvičového zdiva. Nosná část je z keramických tvárnic, které jsou posléze zateplené a pobité fošnami imitujicími roubení.