Autor:

Rok návrhu:

Realizace:

Libor Kodl III.

2013

2015-

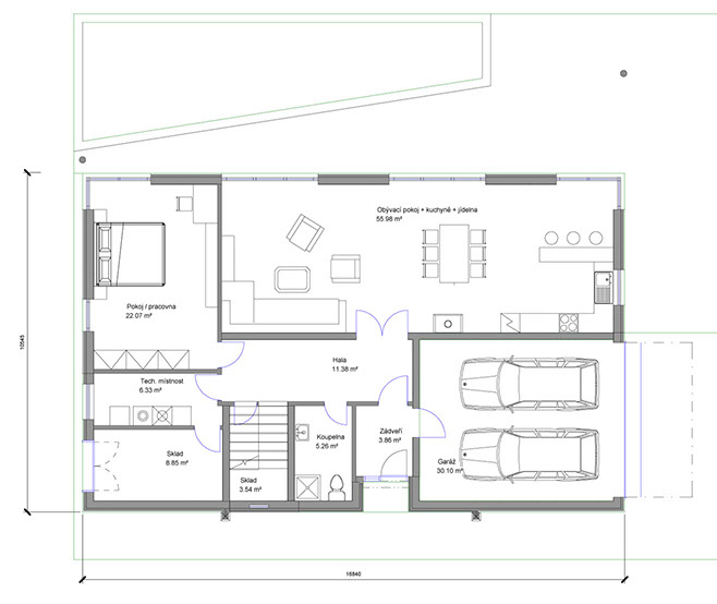
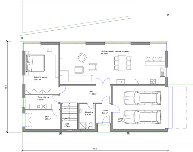
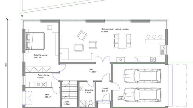
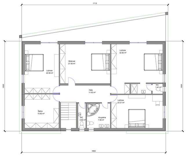
RD Libuš

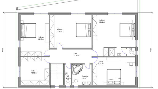
Návrh novostavby RD v Libuši vychází z čisté funkční dispozice s velkým obývacím prostorem, jednou ložnicí, garáží, zahradním skladem a technickým zázemím v přízemí a ložnicemi s koupelnami a wc v patře. Venkovní vzhled s rovnou střechou využívá především kontrastu mezi kamenem a dřevem.