Autor:

Rok návrhu:

Realizace:

Libor Kodl III.

2010

stavební povolení

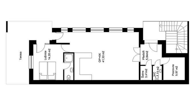
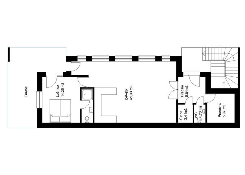
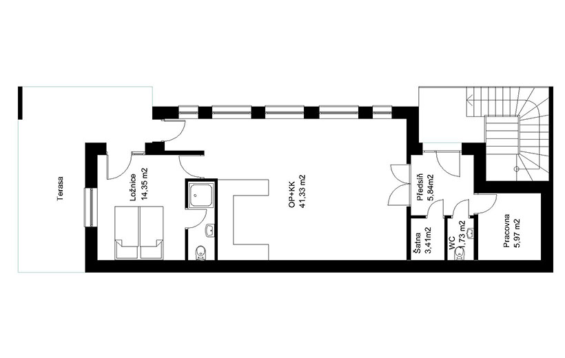
Nástavba Turnov

Nástavba zlatnické dílny v Turnově. Minimální obdélníkový půdorys je využit pro nadstandarní bydlení pro dvě osoby. Realizace byla zatím bohužel odložena pro nedostatek finančních prostředků.