Autor:

Rok návrhu:

Realizace:

Libor Kodl III.

2010

2011-

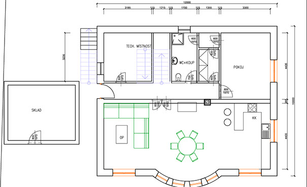
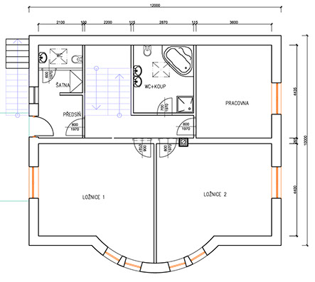
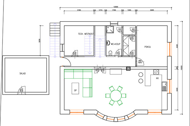
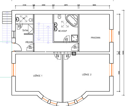
RD Ondřejov

Dům ve svahu je orientován jižně do zahrady s přímo famózním výhledem, kam se také dům otvírá kónickým proskleným rizalitem. Tento jinotvar vznikl v důsledku hloupého regulativu na sedlovou střechu a požadavku klienta na dům ve tvaru kužele...