Autor:

Rok návrhu:

Realizace:

Libor Kodl III.

2015

2015-

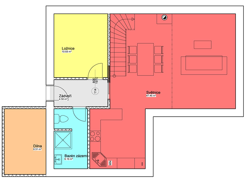
RD Samechov

Pasivní dům na břehu Sázavy na místě bývalého penzionu. Tvar domu je jakýmsi kompromisem mezi tradiční místní architekturou a dnešními požadavky na bydlení bez hospodářské části domu. V původním návrhu se počítalo s využitím dnes již téměř nevídaného prvku - římsy. V interiéru pak dominovala galerie a prostor obývacího pokoje přes dvě patra. Od některých prvků bylo však při realizaci upuštěno. S využitím 90% rekuperace tepla a dvěma vrty tepelného čerpadla je dům, co se nároků na topení a ohřev teplé vody, zcela soběstačný.