Autor:

Rok návrhu:

Realizace:

Libor Kodl III.

2014

2015

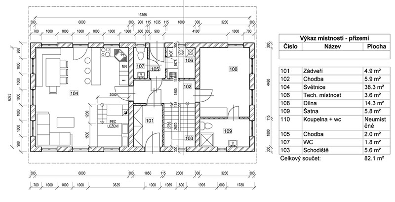
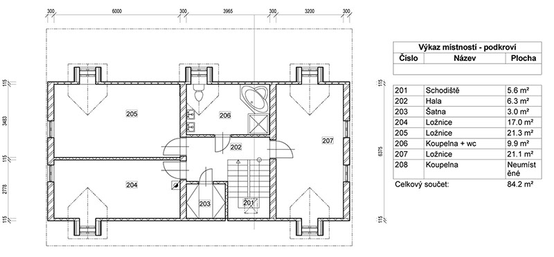
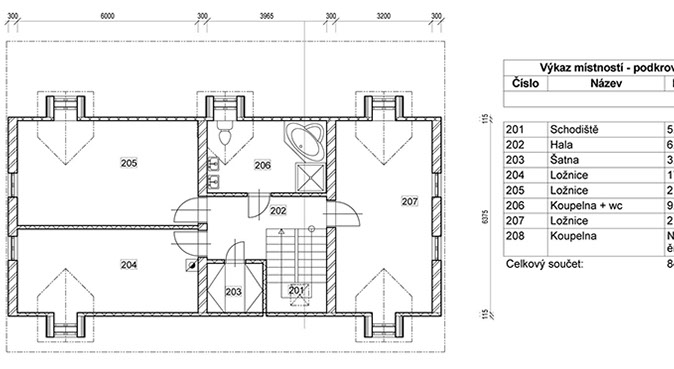
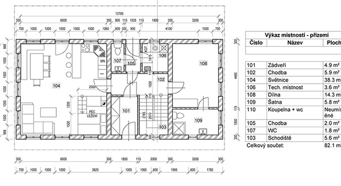
ROUBENKA KOKOŘÍN K

Roubenka v CHKO Kokořínský důl zhotovená tradičním způsobem - roubením svým vzhledem dokonale zapadá do krajiny. Splňuje všechny přísné regulativy pro výstavu na Kokořínsku. I dispozičně vychází z historického dělení na trojtrakt skládající se z traktu vstupního, hospodářského - ve dnešním podání ložnice pro hosty a tzv. světnice, tedy hlavní obytné místnosti, jejížm neodmyslitelným centrem je pec s ležením... V podkroví je klidová zóna - ložnice a jejich hygienické zařízení.