Autor:

Rok návrhu:

Realizace:

Libor Kodl II.

2006

2008

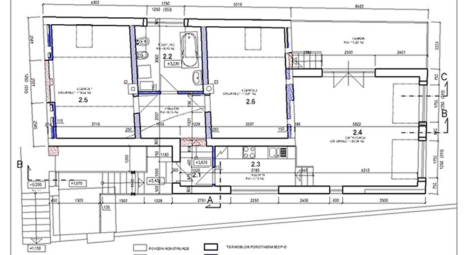
Nástavba a rekonstrukce RD Chuchle

Celková rekonstrukce asi 100 let starého domku ve Veké Chuchli.