Autor:

Rok návrhu:

Realizace:

Libor Kodl III.

2007

studie

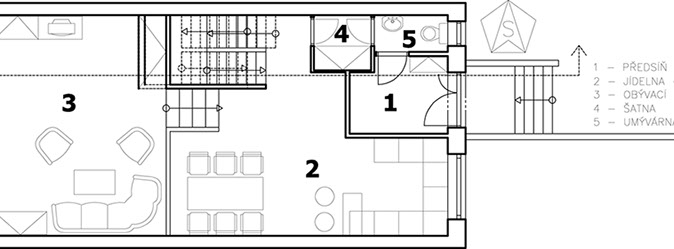
ŘADOVÝ RD LIBEŇ

Řadový rodinný dům "holandského typu" se nachází na libeňském poloostrově v Praze. Fasáda orientovaná do ulice je těžšího charakteru, tvoří protějšek fasády do zahrady - otevřené a odlehčené. Při řešení byl hlavní požadavek bezprostřední kontakt se zahradou. Velký důraz byl od začátku kladen též na kontinuitu prostoru kuchyně, jídelny a obývacího pokoje. Toho bylo obratně dosaženo zapuštěním garáže do země. Tím vzniklo „loosovské“ propojení jídelny a o čtyři schody níže situovaného obývacího pokoje s vysokým stropem. Takřka celoprosklená západní fasáda ani neodděluje exteriér od interiéru a nechá dům pohlcovat příjemné zapadající slunce.