Autor:

Rok návrhu:

Realizace:

Libor Kodl II.

2011

2011-

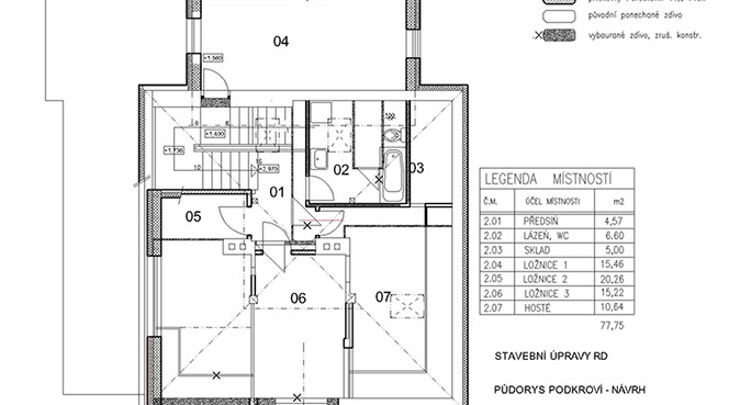
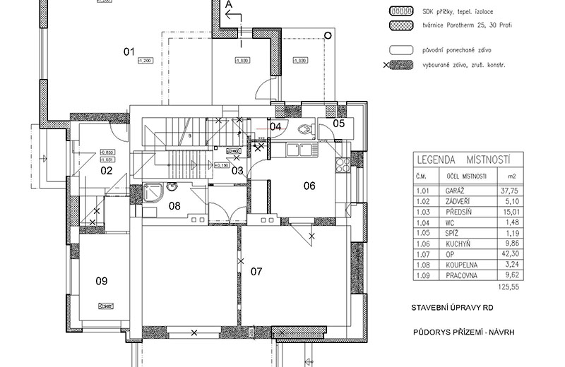
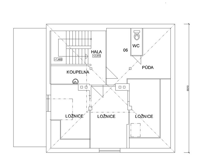
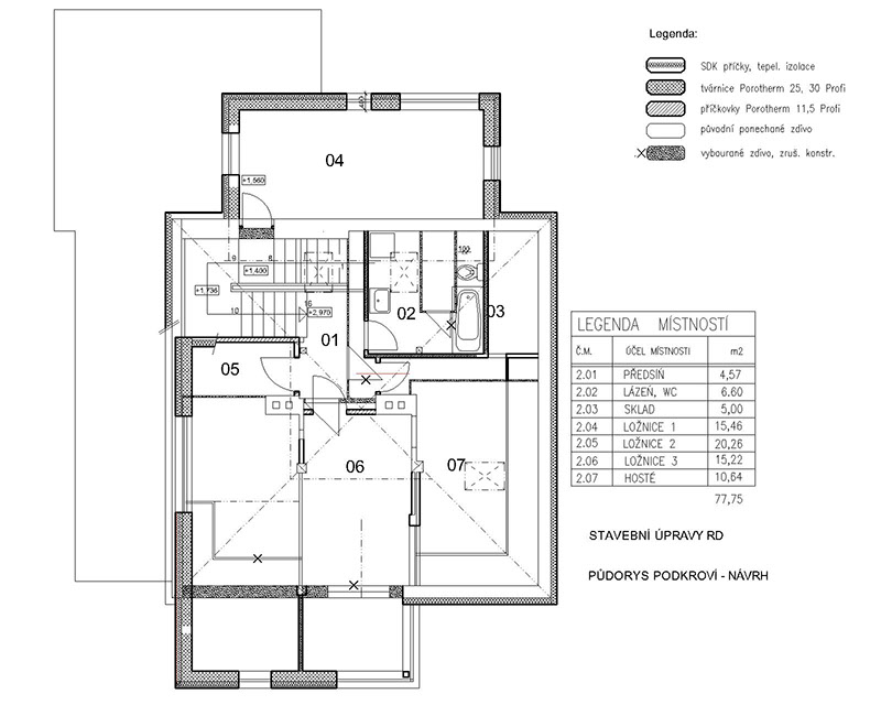
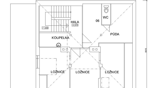
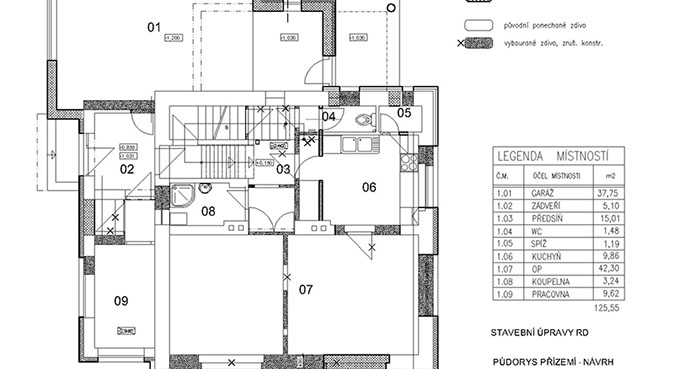
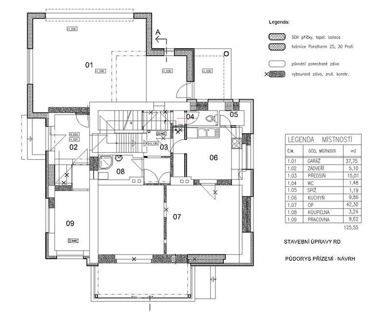
RD Vrané nad Vltavou

Rekonstrukce a přístavba RD ze 60. let.