Autor:

Rok návrhu:

Realizace:

Libor Kodl III.

2011

studie

KOLEKTIVNÍ BYDLENÍ JIŽNÍ MĚSTO

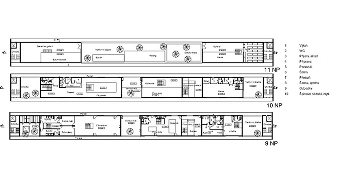
Analogie na Le Corbusierovo kolektivní bydlení na Jižním městě v 21. století. Nad garážemi v suterénu se nachází bydlení s komerční plochou v parteru a zahradou na "střeše". Patra nad jsou vyplněna vždy jednou obytnou buňkou a jednou "zahrádkou" vedle ní. Horní podlaží jsou společná pro celý dům a plní funkci různých služeb. Dům vnáší do šedě gigantického pražského sídliště špetku bytové kultury, ochutnávku přírody a veselý duhový optimismus, zkrátka tvoří dokonalý kontrast světu kolem něj.