Autor:

Rok návrhu:

Realizace:

Libor Kodl II.

2010-2011

2011-2013

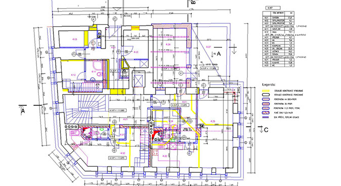
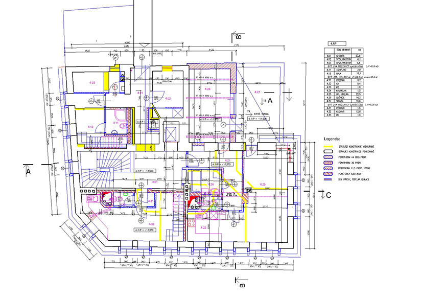
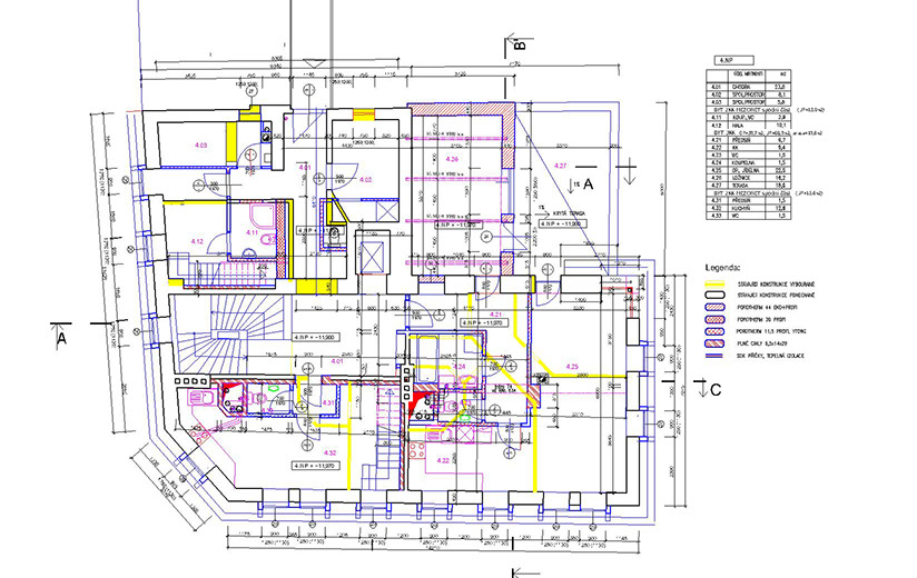
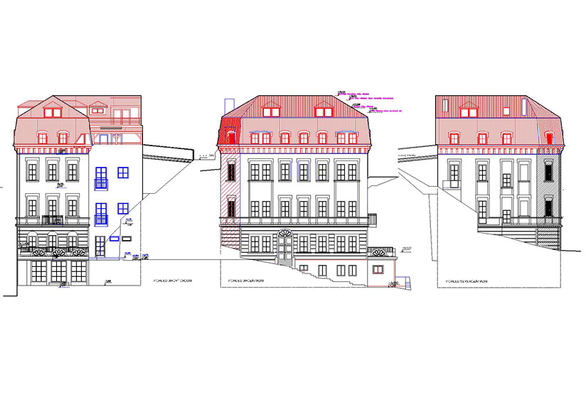
REKONSTRUKCE BD KARLOVY VARY

Rozsáhlé stavební úpravy a nástavba hotelového domu s vyhořelým krovem na bytový dům s 11 bytovými jednotkami a suterénním wellnes.