Autor:

Rok návrhu:

Realizace:

Libor Kodl III.

2018

 

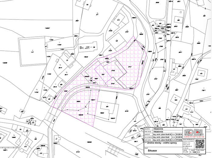
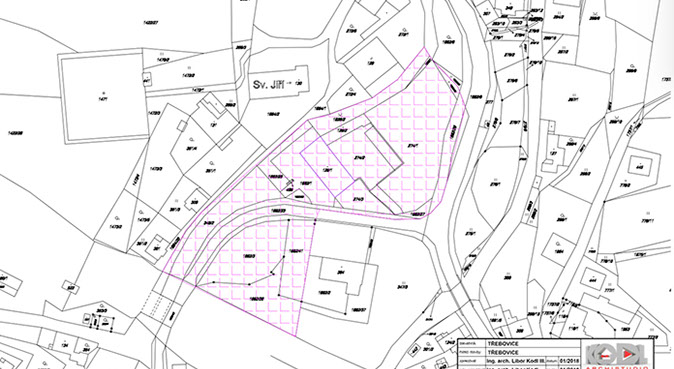
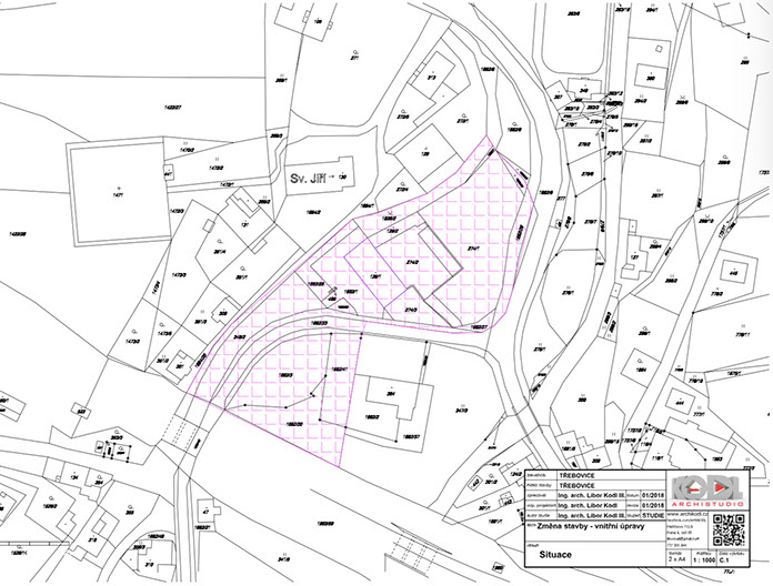
Třebovice

V současnosti se jedná o původní zemědělský objekt, který byl ovšem v roce 2007 z části přestavěn na autobazar.

Zadáním,je adaptovat objekt na obecní úřad s „přidanou hodnotou“.

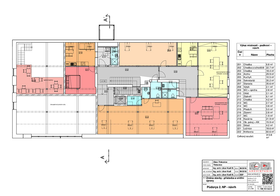
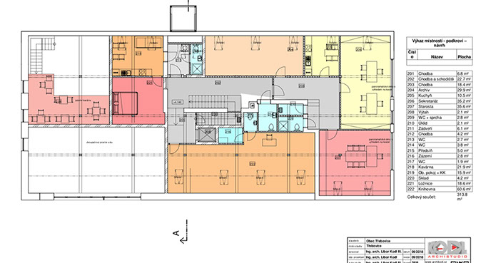
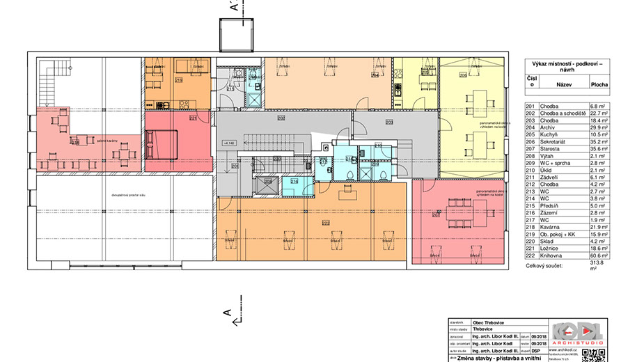
Ta vychází z urbanistické determinace objektu – obklopení veřejně významnými místy – kostelem, konzumem a dětským hřištěm. Adaptace zdůrazňuje génia loci a činí z tohoto místa společenské, správní, kulturní i sportovní centrum obce. Samotné prostory úřadu se nacházejí ve 2. NP, které je přístupné bez bariér výtahem, kanceláře jsou situovány do severozápadní části budovy, jež směřuje přímo na kostel Sv. Jiří, skvost Třebovické architektury. Propojení těchto dominant zdůrazní široká panoramatická okna, Ve 2. NP nalezname též  knihovnu a jeden pohotovostní byt 2+kk.

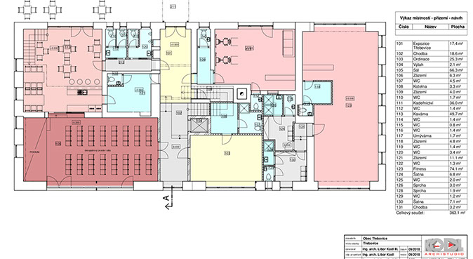
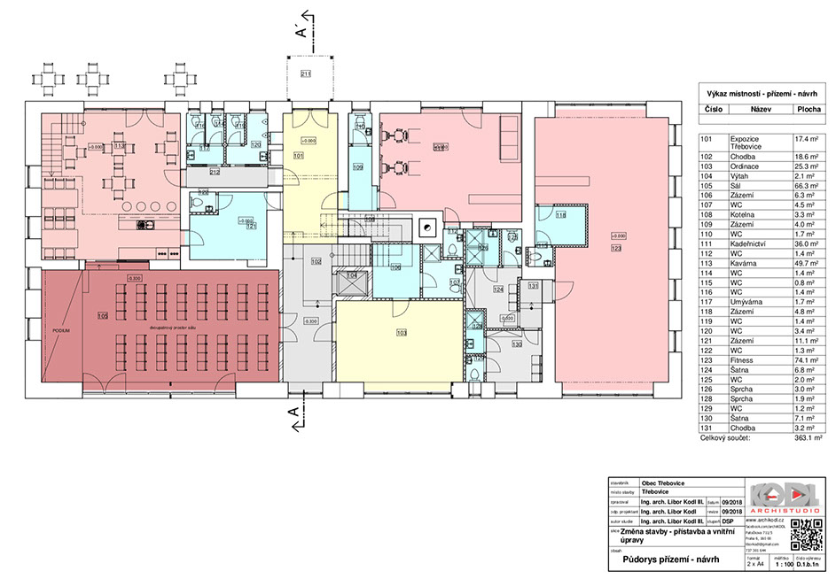
Co nesmí chybět na žádné radnici? No převe hodiny na věži. V tomto případě je řešena moderně v nerušícím kontrastu k původní stavbě lehkou ocelovou kontrukcí opláštěnou tahokovem. Tvoří tak dostatečně reprezentativní hlavní vstup do objektu, konkrétně do spojovacího koridoru zvaného „Expozice Třebovice“ věnovaného historii a významným událostem a občanům Třebovic.

Dále nechybí víceúčelový sál přes dvě patra, ,„Třebovice coffee“.

Zbývající prostory v přízemí budou mít komerční využití přístupné z parteru.

Přejít na další projekt →