Autor:

Rok návrhu:

Realizace:

Libor Kodl III.

2016

 

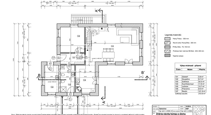
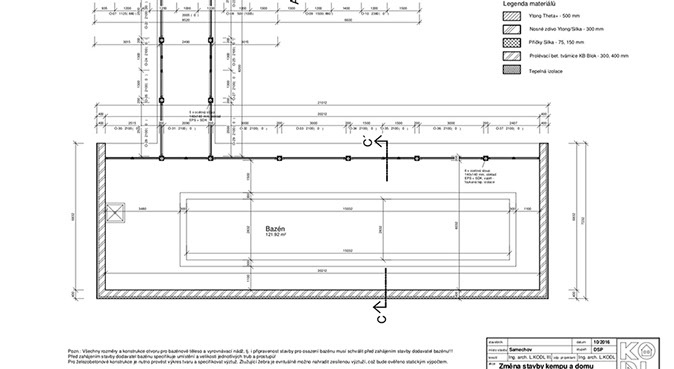
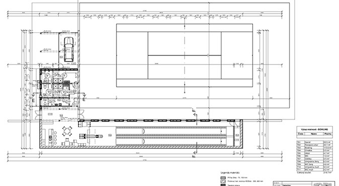
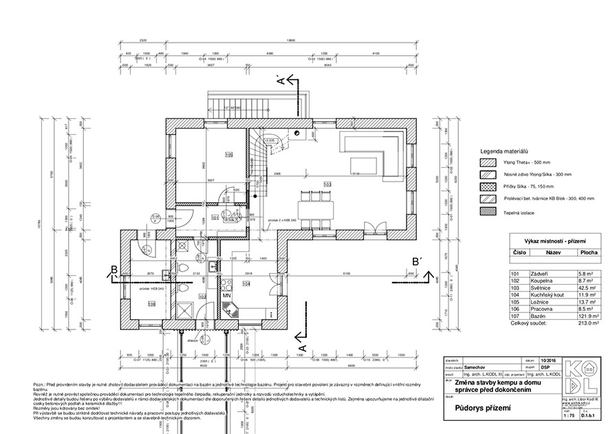
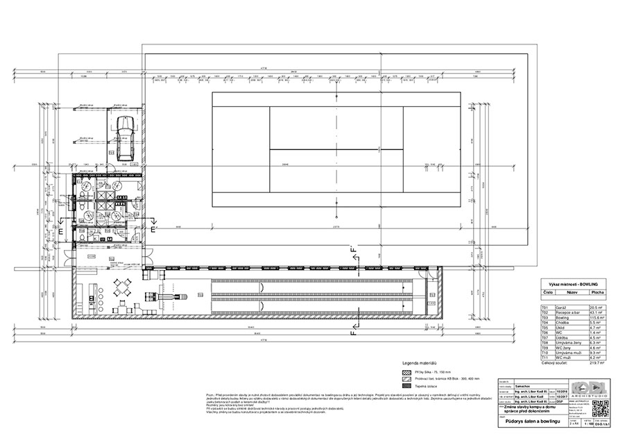
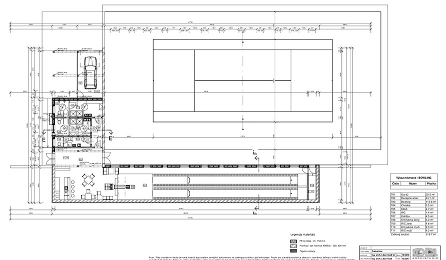
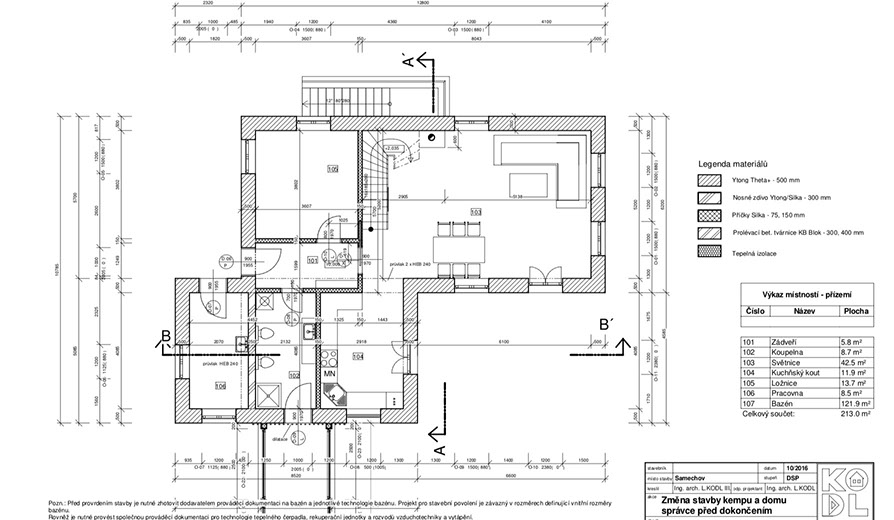
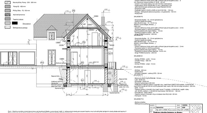
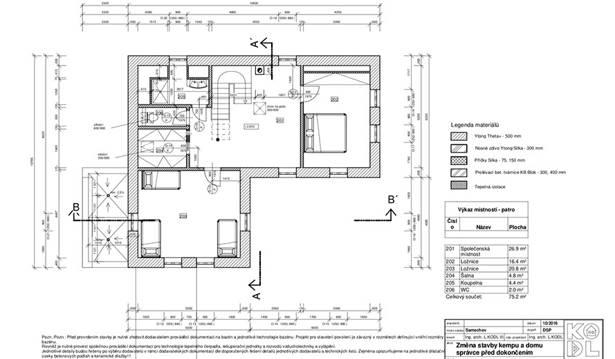
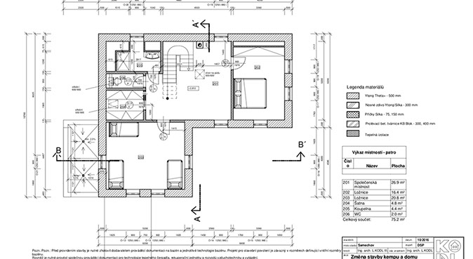
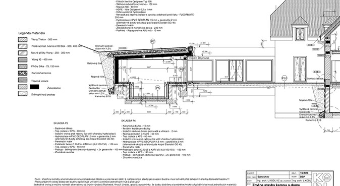
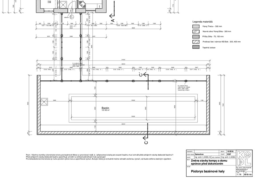
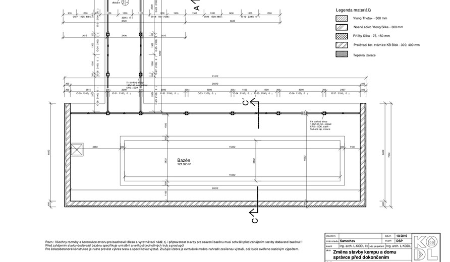
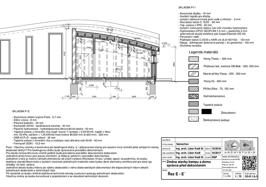
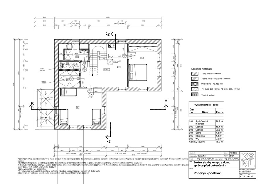
REKREAČNÍ AREÁL SAMECHOV

Původní záměr skromné chatičky na samotě u lesa vzal rychle za své, když se neslučoval s výkladem stavebního úřadu, co přesně je přípustné pro hromadnou rekreaci. Hromada lidí na chatě evidentně ne. A tak se přes kemp a dům správce vyvinul až do plnohodnotně vybaveného sportovního areálu na 1 ha, kde nechybí krytý bazén tvořený monolitickou železobetonovou konstrukcí zapuštěnou do svahu, který svým funkcionalistickým vzhledem kontrastuje rodinnému domu správce, jenž musel podléhat nesmyslným regulativům, tenisový kurt se zázemím a bowlingová hala s občerstvením...