Autor:

Rok návrhu:

Realizace:

Libor Kodl III.

2013

2014

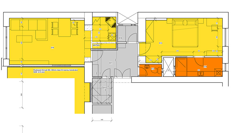
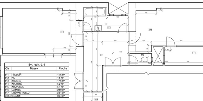
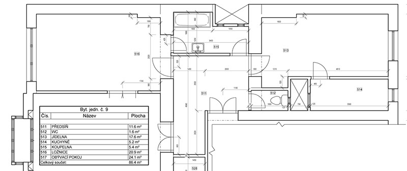
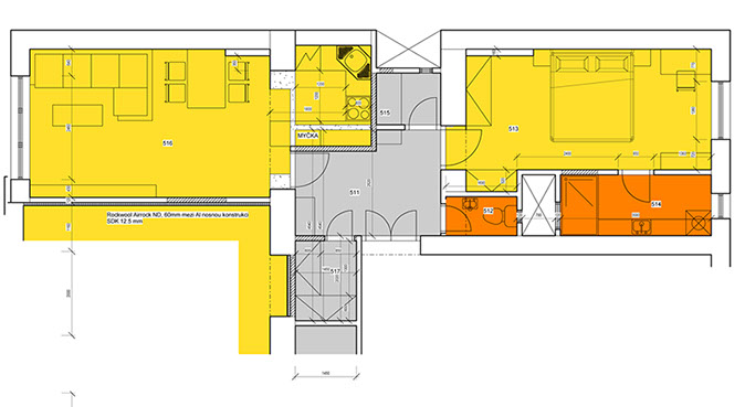
Rekonstrukce bytu v ul. K Brusce

Celková rekonstrukce bytu v domě z počátku 20. stol v ulici K Brusce v Praze. Prodejem jednoho pokoje se původní dispozice stala zcela nesmyslnou. Proto jsme přisoupili k radikálnímu a modernímu řešení: Kuchyně se přesunula do původního pokoje orientovaného do rušnější ulice, kde vznikl společný prostor pro vaření, stravování a trávení volného času. Naopak ložnice je situována v klidné části směrované do vnitrobloku. Vzhledem k tomu, že se jedalo o bezdětný pár, koupelna je umístěna místo původní kuchyně - přístupná rovnou z ložnice.