Autor:

Rok návrhu:

Realizace:

Ing. arch. Libor Kodl II., Ing. arch. Libor Kodl III., Ing. Z. Krampera

2015-2017

2017-2018

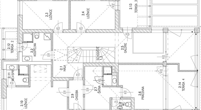
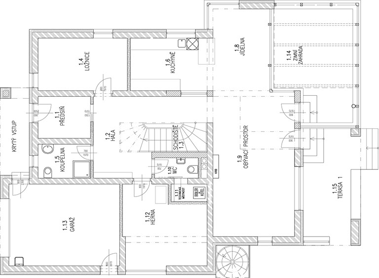
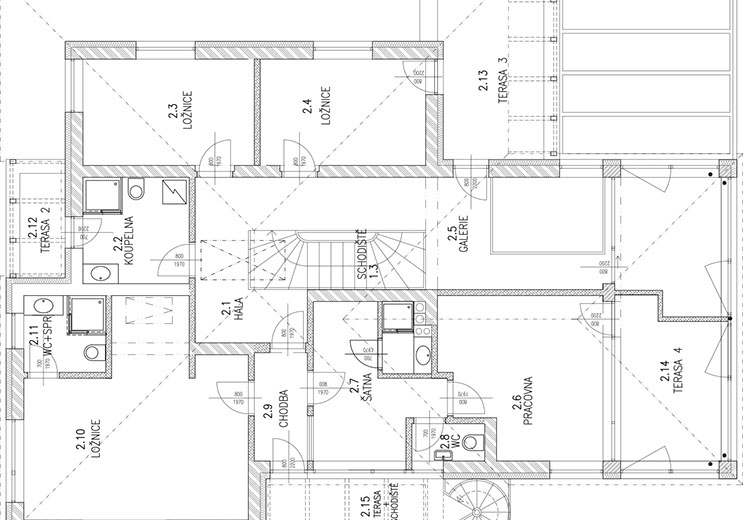
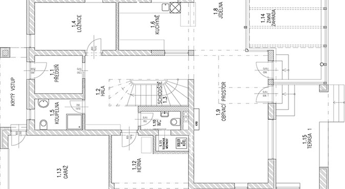
RD Kolovraty

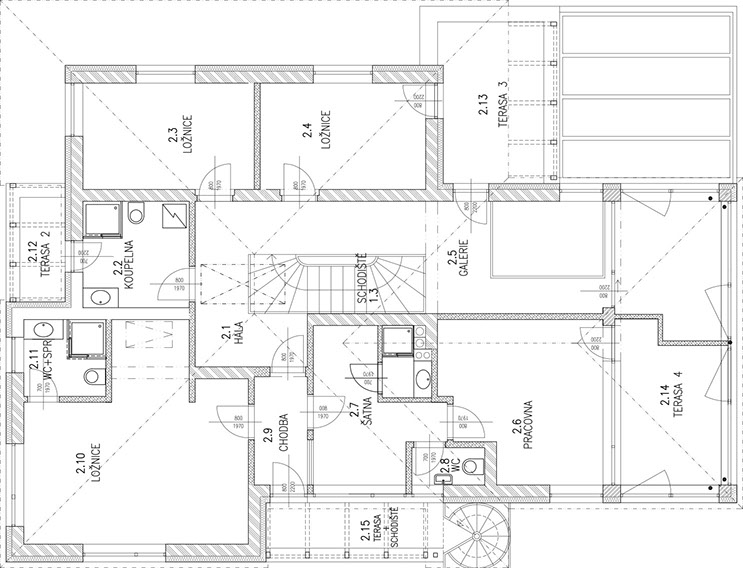
Dvougenerační rodinný dům v Kolovratech u Prahy oslní svou interiérovou velkorysostí, kde se potkávají různě prosvětlené prostory s centrem dění ve velké světnici propojené se zimní zahradou v přízemí a galerií v patře. Pro exteriér bylo použito kombinace dřevěného obklady, bílého štuku a čediče, prvků zdánlivě odlišných, ale vyváženě se doplňujích v kontrastní hře všech fasád.

Přejít na další projekt →