Autor:

Rok návrhu:

Realizace:

Ing. arch. Libor Kodl III.

 

 

RD Kolovraty

Stavební pozemek se nachází v památkové zóně kostela Narození Panny Marie (původně  rotundy) v obci Holubice, takže je svázán poměrně přísnou prostorovou regulací. Tato stavba je nicméně důkazem, že pokud se sejde rozumný klient, který ví, co chce, a rozumný architekt, který umí naslouchat, není problém skloubit požadavky na soudobé bydlení se vzhledem, jenž zcela akceptuje krajinný ráz okolí.

Ústředním prostorem přízemí je světnice (kuchyně, jídelna a obývací pokoj) rozkládající se přes dvě podlaží. Nechybí zde ložnice pro rodiče s vlastní koupelnou, technická místnost, spíž, wc a schodiště.

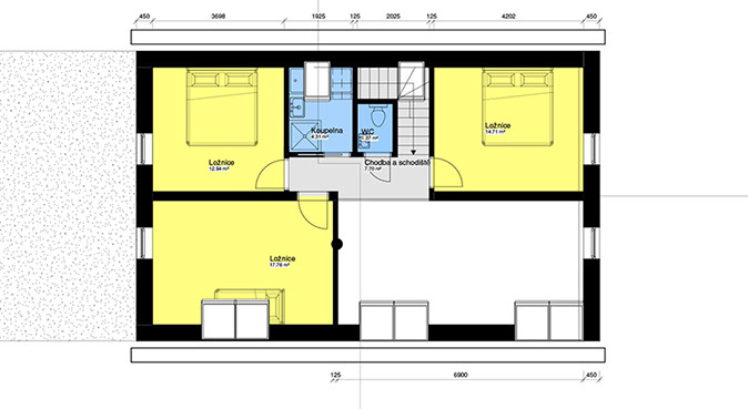
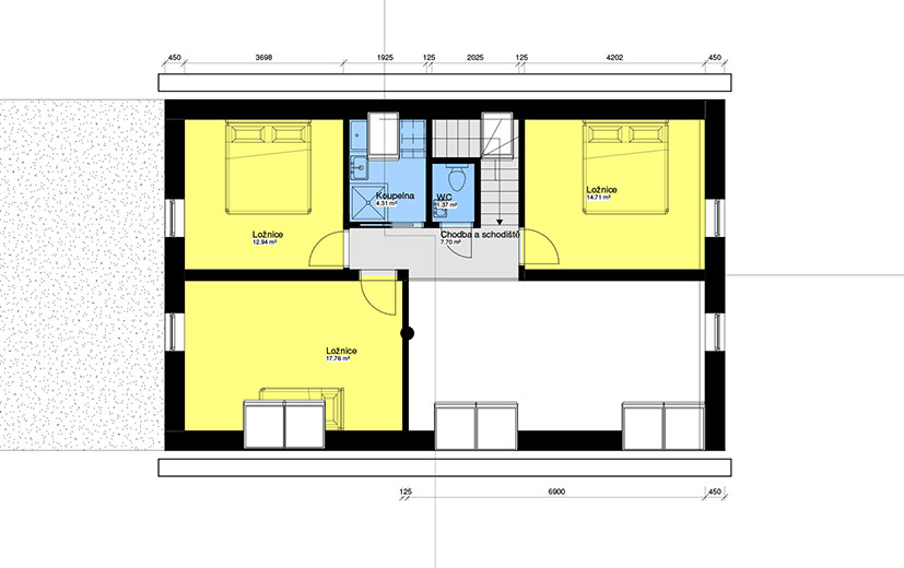
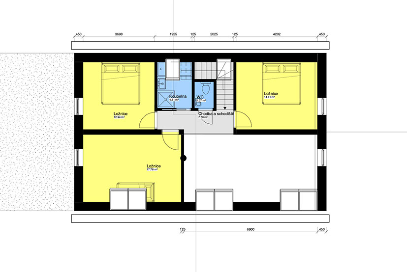
V podkroví  je pak galerie, ložnice a koupelna s wc.

V jednoduchosti je krása.

Přejít na další projekt →