Autor:

Rok návrhu:

Realizace:

Libor Kodl II.

2005

2006

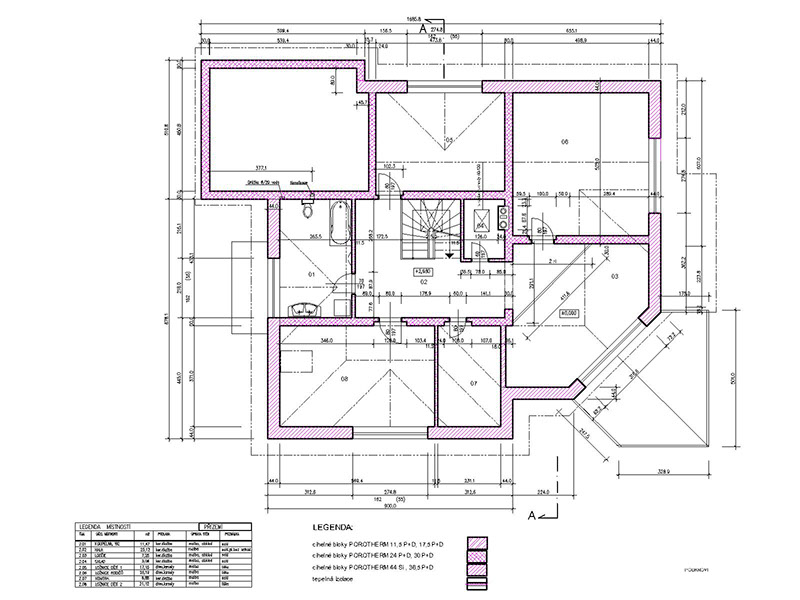
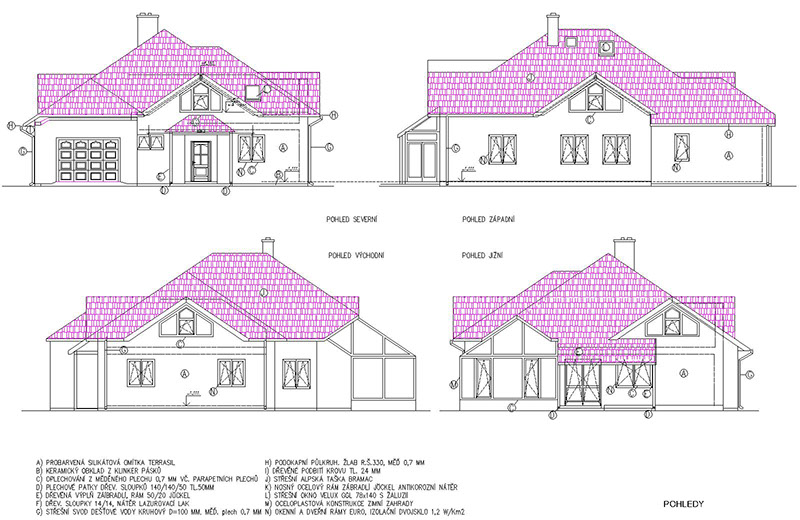
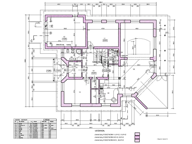
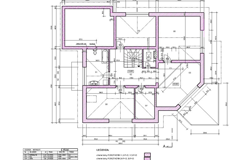
RD Uhříněves

Hra různě se prolínajících hmot a materiálů vyniká především jihozápadně orientovanou zimní zahradou - srdcem domu.