Autor:

Rok návrhu:

Realizace:

Libor Kodl II.

2012

2013

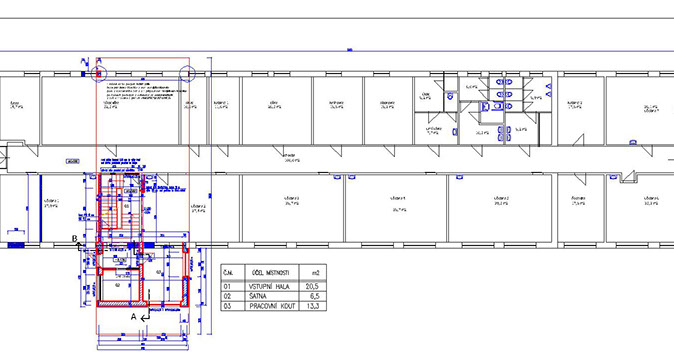
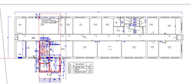
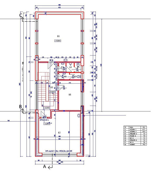
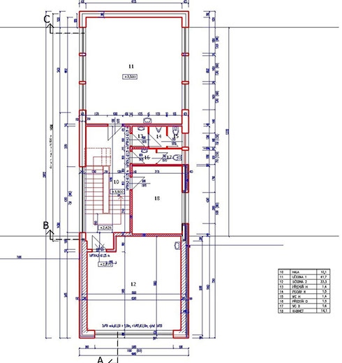
Nástavba ZŠ Vachkova

Původní lignátová stavba zvláštní školy v Uhříněvsi byla v minulosti přistavovaná v původním tvaru, až se vyčerpaly všechny plošné možnosti pozemku. Proto byla zvolena možnost nástavby s minimální přístavbou se zachováním vzrostlých stromů. Přístavba je v klasické zděné technologii a nástavba je zvolena jako lehká dřevostavba.