Autor:

Rok návrhu:

Realizace:

Libor Kodl II.

2009 - 2014

2009 -

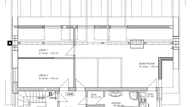
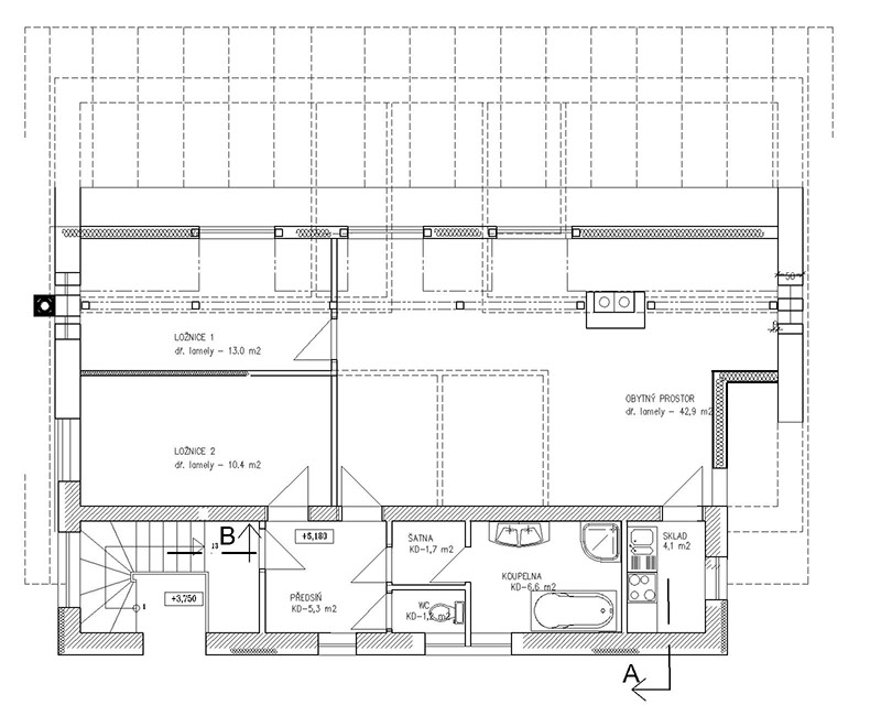
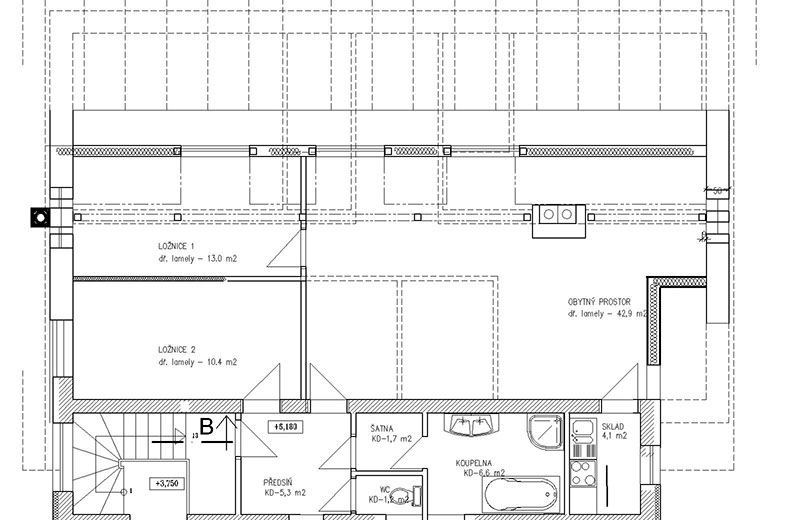
Nástavba a rekonstrukce hotelu ve Špindlerově Mlýně

Postupná rekonstrukce hotelu Jelínek ve Špindlerově Mlýně od r.2009. Provedeny bezbarierové úpravy, rekonstrukce suterénu (vinárna, zasedací místnost, sauna), přízemí (úprava restaurace, přístavba recepce) i podkroví (nástavba pokojů), projekčně je připravena i nástavba podkroví (byt správce) v západním křídle.