Autor:

Rok návrhu:

Realizace:

Libor Kodl III.

2012

studie

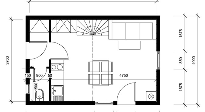
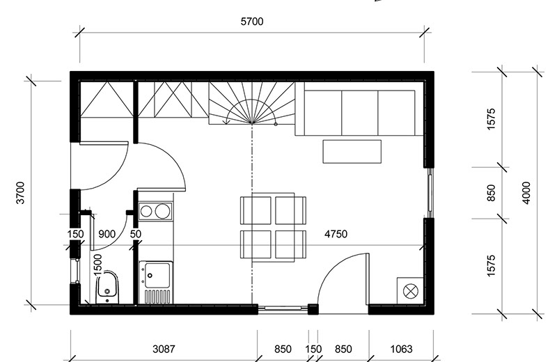
Chata Montana

Studie chaty v chatařské osadě Montana na Sázavě. Zadání znělo: "Za pár korun..." V jednoduchosti je krása.